Jalur kabel mobil Avanza 2004, 2005, 2006, 2007 sampai dengan 2011 dapat berbeda-beda tergantung pada sistem kelistrikan dan perangkat yang terpasang pada mobil tersebut. Namun, secara umum, berikut adalah beberapa jalur kabel yang umumnya ada dalam mobil Avanza:
Berikut ini Jalur-jalur kabel Untuk Mobil Avanza
1. Jalur kabel baterai avanza:
Jalur ini menghubungkan baterai dengan sistem kelistrikan mobil, seperti starter, alternator, dan sistem pengisian baterai lainnya. untuk melihat jalur Kabel Mobil Avanza lengkap bisa kamu download di akhir aktikel ini :
2. Jalur kabel pengapian avanza:
Jalur ini menghubungkan sistem pengapian mobil, termasuk koil pengapian, distributor, dan busi.
3. Jalur kabel lampu avanza:
pJalur ini menghubungkan lampu depan, lampu belakang, lampu rem, lampu sein, dan lampu-lampu lainnya pada mobil.4. Jalur kabel sistem pengisian avanza:
Jalur ini menghubungkan alternator dengan baterai mobil untuk mengisi daya baterai saat mobil sedang berjalan.
5. Jalur kabel sistem pengisian bahan bakar avanza:
Jalur ini menghubungkan pompa bahan bakar dengan saklar pengisian bahan bakar, relai, dan indikator level bahan bakar.
6. Jalur kabel sistem audio avanza:
Jalur ini menghubungkan sistem audio mobil, termasuk radio, speaker, amplifier, dan perangkat lainnya.
7. Jalur kabel sistem pengendalian mesin avanza:
Jalur ini menghubungkan sensor-sensor mesin, seperti sensor suhu mesin, sensor tekanan oli, sensor putaran mesin, dan sensor-sensor lainnya.
Namun, penting untuk diingat bahwa jalur kabel pada mobil dapat berbeda-beda tergantung pada tahun produksi, model, dan konfigurasi spesifik mobil Avanza yang Anda miliki. Sebaiknya Anda merujuk pada buku panduan atau manual teknis mobil Avanza dari pabrikan atau berkonsultasi dengan mekanik terpercaya untuk informasi yang lebih spesifik mengenai jalur kabel pada mobil Avanza Anda.
Jalur Kabel Dinamo Starter Mobil Avanza
Jalur kabel dinamo starter mobil merupakan bagian penting dalam sistem kelistrikan mobil. Jalur ini menghubungkan dinamo starter dengan baterai mobil dan komponen-komponen lainnya. Pada mobil Avanza 2004-2011, jalur kabel dinamo starter umumnya terdiri dari beberapa bagian, antara lain:
1. Kabel positif baterai:
Ini adalah jakur kabel avanza yang menghubungkan terminal positif baterai dengan terminal positif dinamo starter. Kabel ini membawa arus listrik dari baterai ke dinamo starter saat kunci kontak diaktifkan.
2. Kabel negatif baterai:
Ini adalah kabel yang menghubungkan terminal negatif baterai dengan rangka mobil. Kabel ini berfungsi untuk menggrounding sistem kelistrikan pada mobil avanza dan memastikan sirkuit kelistrikan bekerja dengan baik.
3. Kabel kontrol starter:
Kabel ini menghubungkan saklar starter pada kunci kontak dengan dinamo starter. Ketika kunci kontak diputar ke posisi start, kabel kontrol starter mengirimkan sinyal ke dinamo starter untuk mengaktifkan proses pemutaran mesin.
4. Kabel solenoid starter:
Kabel ini menghubungkan solenoid starter dengan dinamo starter. Solenoid starter adalah komponen yang berfungsi untuk menghubungkan dan memutuskan arus listrik menuju dinamo starter saat proses penghidupan mesin.
5. Kabel ground starter:
Kabel ini menghubungkan dinamo starter dengan rangka mobil avanza atau titik grounding lainnya. Fungsi kabel ground starter adalah untuk memastikan dinamo starter memiliki jalur grounding yang baik, sehingga bekerja dengan efisien.
Jalur kabel dinamo starter mobil ini dapat berbeda-beda tergantung pada jenis mobil dan sistem kelistrikan yang digunakan. Pastikan untuk merujuk pada buku panduan atau manual teknis mobil Avanza 2004-2011 untuk mendapatkan informasi yang lebih spesifik mengenai jalur kabel dinamo starter pada mobil Anda.
Jalur Kabel Pengapian pada Mobil Avanza
Jalur kabel pengapian pada mobil avanza adalah serangkaian kabel yang menghubungkan komponen-komponen dalam sistem pengapian. Sistem pengapian bertugas untuk menghasilkan percikan api di ruang bakar untuk membakar campuran bahan bakar dan udara. Berikut adalah beberapa komponen penting dalam jalur kabel pengapian avanza:
1. Ignition Coil:
Ignition coil adalah komponen yang mengubah tegangan rendah dari baterai menjadi tegangan tinggi. Ignition coil menghasilkan percikan api yang akan diteruskan ke busi melalui kabel tegangan tinggi.
2. Distributor:
Distributor adalah komponen yang membagikan arus listrik dari ignition coil ke setiap busi pada mesin. Distributor memiliki rotor yang berputar dan membagikan arus listrik ke busi secara berurutan sesuai dengan posisi piston.
3. Rotor:
Rotor adalah komponen pada distributor yang berputar dan berfungsi untuk membagikan arus listrik dari ignition coil ke busi. Rotor ini memiliki kontak yang berhubungan dengan kabel tegangan tinggi.
4. Distributor Cap:
Distributor cap adalah penutup atas distributor yang berfungsi untuk melindungi rotor dan kabel tegangan tinggi dari kontaminasi dan kelembaban. Distributor cap memiliki titik kontak yang berhubungan dengan rotor dan kabel tegangan tinggi.
5. Kabel Tegangan Tinggi:
Kabel tegangan tinggi menghubungkan distributor cap dengan setiap busi pada mesin. Kabel ini membawa arus listrik tinggi dari distributor ke busi untuk menciptakan percikan api.
6. Busi:
Busi adalah komponen akhir dalam jalur kabel pengapian. Setiap silinder pada mesin memiliki satu busi yang berfungsi untuk menciptakan percikan api dan membakar campuran bahan bakar dan udara di ruang bakar.
Jalur kabel pengapian ini bekerja secara berurutan, dimulai dari ignition coil yang menghasilkan tegangan tinggi, kemudian tegangan tersebut diteruskan melalui distributor, rotor, distributor cap, kabel tegangan tinggi, hingga akhirnya mencapai busi dan menciptakan percikan api.
Penting untuk menjaga kebersihan dan kualitas kabel pengapian serta komponen-komponen terkait lainnya agar sistem pengapian dapat berfungsi dengan baik. Jika terdapat masalah pada jalur kabel pengapian, seperti kabel yang aus atau busi yang rusak, dapat menyebabkan kendala pada pengapian mesin. Sebaiknya, periksa secara berkala dan ganti komponen yang rusak atau aus untuk menjaga kinerja sistem pengapian mobil Anda.
Jalur Kabel Lampu pada Mobil Avanza old
Jalur kabel lampu pada mobil avanza mencakup berbagai komponen dan kabel yang terhubung untuk mengoperasikan sistem penerangan mobil. Berikut adalah beberapa komponen utama dalam jalur kabel lampu:
1. Saklar Lampu:
Saklar lampu adalah komponen yang mengontrol penerangan lampu pada mobil. Saklar ini bisa berupa tuas atau tombol yang dioperasikan oleh pengemudi.
2. Kabel Utama:
Kabel utama adalah kabel yang menghubungkan sumber daya listrik dari baterai mobil ke sistem lampu. Kabel ini biasanya memiliki warna merah atau hitam, tergantung pada konfigurasi kelistrikan mobil.
3. Relay:
Relay adalah komponen elektromagnetik yang digunakan untuk mengendalikan aliran listrik ke lampu. Relay memungkinkan saklar lampu untuk mengaktifkan atau mematikan aliran listrik dengan daya yang lebih besar.
4. Kabel Lampu:
Kabel lampu menghubungkan relay atau saklar lampu dengan lampu depan, lampu belakang, lampu rem, lampu sein, dan lampu lainnya pada mobil. Setiap lampu biasanya memiliki kabel tersendiri yang terhubung ke saklar atau relay.
5. Lampu:
Lampu-lampu pada mobil termasuk lampu depan, lampu belakang, lampu rem, lampu sein, lampu kabut, dan lampu lainnya. Lampu ini menggunakan tenaga listrik yang diberikan melalui jalur kabel untuk menghasilkan cahaya.
Jalur kabel lampu bekerja dengan mengalirkan listrik dari baterai melalui kabel utama ke saklar lampu atau relay. Kemudian, saklar atau relay mengendalikan aliran listrik ke lampu melalui kabel lampu. Ketika saklar diaktifkan, listrik mengalir ke lampu dan menyala.
Penting untuk memeriksa kondisi kabel lampu secara berkala dan menggantinya jika terjadi kerusakan atau keausan. Juga, pastikan semua koneksi kabel lampu terpasang dengan baik untuk memastikan penerangan mobil yang optimal dan aman saat berkendara di malam hari atau dalam kondisi jarak pandang terbatas.
**Disclaimer**: Informasi ini berlaku secara umum dan dapat bervariasi tergantung pada merek dan model mobil. Sebaiknya selalu merujuk pada panduan pengguna atau manual servis yang disediakan oleh produsen mobil Anda untuk informasi yang lebih spesifik.
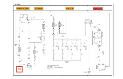
Jalur Kabel Sistem Pengisian Pada Avanza
Sistem pengisian pada kendaraan melibatkan berbagai komponen dan jalur kabel yang terhubung untuk mengisi daya baterai dan menyediakan listrik yang diperlukan oleh berbagai sistem kendaraan. Berikut adalah penjelasan mengenai jalur kabel sistem pengisian pada kendaraan:
1. Baterai / AKI :
Baterai atau aki adalah komponen utama dalam sistem pengisian. Fungsinya adalah menyimpan dan menyediakan daya listrik untuk kendaraan. Baterai menghasilkan tegangan listrik sekitar 12 volt yang diperlukan untuk menghidupkan kendaraan dan menyediakan daya untuk sistem pengisian.
2. Alternator:
Alternator adalah komponen yang menghasilkan listrik saat mesin kendaraan berjalan. Alternator menggunakan tenaga mekanis dari mesin untuk mengubah energi mekanis menjadi energi listrik. Alternator mengisi daya baterai dan menyediakan daya listrik untuk sistem kelistrikan kendaraan saat mesin berjalan.
3. Regulator:
pRegulator adalah komponen yang mengatur tegangan keluaran dari alternator. Regulator memastikan tegangan listrik yang dihasilkan oleh alternator tetap stabil dan sesuai dengan kebutuhan sistem kelistrikan kendaraan. Regulator juga melindungi baterai dari overcharging yang dapat merusaknya.4. Kabel Pengisian:
Kabel pengisian menghubungkan alternator dengan baterai untuk mengisi daya baterai. Kabel ini biasanya memiliki warna putih atau kuning, tergantung pada sistem kelistrikan kendaraan. Kabel pengisian ini mentransfer arus listrik dari alternator ke baterai.
5. Fuse:
Fuse adalah komponen pengaman dalam sistem pengisian. Fuse melindungi komponen-komponen elektronik dan kelistrikan kendaraan dari korsleting atau arus berlebih. Jika arus melebihi batas yang aman, fuse akan putus untuk mencegah kerusakan lebih lanjut.
Jalur kabel sistem pengisian bekerja dengan mengalirkan listrik dari alternator melalui kabel pengisian ke baterai. Saat mesin kendaraan berjalan, alternator menghasilkan listrik yang mengisi daya baterai dan menyediakan daya untuk sistem kelistrikan kendaraan. Regulator memastikan tegangan listrik tetap stabil dan fuse melindungi sistem dari kerusakan akibat arus berlebih.
Penting untuk memeriksa kondisi kabel pengisian secara berkala dan menggantinya jika terjadi kerusakan atau keausan. Hal ini penting untuk menjaga kinerja sistem pengisian dan memastikan baterai terisi dengan baik untuk menjaga kelistrikan kendaraan yang optimal.
**Disclaimer**: Informasi ini berlaku secara umum dan dapat bervariasi tergantung pada merek dan model kendaraan. Pastikan untuk merujuk pada manual servis yang disediakan oleh produsen kendaraan Anda untuk informasi yang lebih spesifik.
Baca Juga : Wiring ABS Avanza dan Wiring Contiorner Avanza
Jalur Kabel Sistem Pengisian Bahan Bakar pada Mobil Avanza
Sistem pengisian bahan bakar pada kendaraan melibatkan jalur kabel yang menghubungkan berbagai komponen terkait. Berikut adalah penjelasan mengenai jalur kabel sistem pengisian bahan bakar pada kendaraan mobil avanza:
1. Pompa Bahan Bakar:
Pompa bahan bakar adalah komponen yang memompa bahan bakar dari tangki kendaraan ke mesin. Pompa ini biasanya ditenagai oleh listrik dan terhubung dengan jalur kabel yang menyediakan daya listrik ke pompa.
2. Relay:
pRelay adalah saklar elektromagnetik yang mengendalikan aliran listrik ke pompa bahan bakar. Relay ini terhubung dengan kunci kontak atau sistem pengendali lainnya dan menerima sinyal untuk mengaktifkan atau mematikan pompa bahan bakar.3. Kabel Pengisian:
Kabel pengisian adalah kabel yang menghubungkan sumber daya listrik ke pompa bahan bakar. Kabel ini biasanya memiliki warna tertentu, seperti merah atau hitam, tergantung pada sistem kelistrikan kendaraan. Kabel pengisian ini mentransfer listrik dari sumber daya ke pompa bahan bakar.
4. Saklar Bahan Bakar:
Saklar bahan bakar adalah komponen yang mengendalikan aliran bahan bakar dari tangki ke mesin. Saklar ini terhubung dengan jalur kabel yang memungkinkan saklar untuk mengontrol aliran bahan bakar sesuai dengan permintaan mesin atau pengemudi.
5. Sensor Bahan Bakar:
Sensor bahan bakar adalah komponen yang mendeteksi jumlah bahan bakar yang tersisa di dalam tangki kendaraan. Sensor ini terhubung dengan jalur kabel yang mengirimkan informasi tentang level bahan bakar ke pengukur atau indikator di dalam kendaraan.
Jalur kabel sistem pengisian bahan bakar bekerja dengan mengalirkan listrik dari sumber daya ke pompa bahan bakar melalui kabel pengisian. Relay mengontrol aliran listrik ke pompa bahan bakar, sedangkan saklar bahan bakar mengontrol aliran bahan bakar dari tangki ke mesin. Sensor bahan bakar mendeteksi level bahan bakar dan mengirimkan informasi melalui jalur kabel ke pengukur atau indikator di dalam kendaraan.
Penting untuk memeriksa kondisi jalur kabel sistem pengisian bahan bakar secara berkala dan menggantinya jika terjadi kerusakan atau keausan. Hal ini penting untuk menjaga kinerja sistem pengisian bahan bakar yang optimal dan mencegah gangguan dalam pengiriman bahan bakar ke mesin kendaraan.
**Disclaimer**: Informasi ini berlaku secara umum dan dapat bervariasi tergantung pada merek dan model kendaraan. Pastikan untuk merujuk pada manual servis yang disediakan oleh produsen kendaraan Anda untuk informasi yang lebih spesifik.
Jalur Kabel Audio Mobil Avanza
Jalur kabel audio mobil Avanza terdiri dari berbagai komponen yang bertanggung jawab untuk menghubungkan sistem audio mobil dengan speaker dan sumber suara lainnya. Berikut adalah penjelasan mengenai jalur kabel audio mobil Avanza:
1. Head Unit:
Head unit adalah unit kontrol utama yang terhubung dengan sistem audio mobil. Head unit ini biasanya dilengkapi dengan soket atau jack untuk menghubungkan jalur kabel audio mobil. Pada Avanza, head unit ini berfungsi untuk mengatur sumber suara dan mengontrol volume serta pengaturan lainnya.
2. Amplifier:
Amplifier adalah komponen yang bertanggung jawab untuk memperkuat sinyal audio dan mengirimkannya ke speaker. Amplifier ini terhubung dengan head unit melalui jalur kabel audio. Pada Avanza, amplifier ini dapat ditemukan di dalam head unit atau terpisah sebagai komponen tambahan.
3. Kabel Audio:
Kabel audio adalah kabel yang menghubungkan head unit atau amplifier dengan speaker. Kabel ini mentransfer sinyal audio dari head unit atau amplifier ke speaker untuk menghasilkan suara. Pada Avanza, kabel audio ini biasanya terdiri dari beberapa pasang kabel yang terhubung dengan speaker di berbagai lokasi dalam kendaraan.
4. Soket atau Jack Audio:
pSoket atau jack audio adalah konektor yang digunakan untuk menghubungkan kabel audio dengan head unit atau amplifier. Soket ini biasanya terdiri dari pasangan konektor yang sesuai dengan jenis kabel audio yang digunakan. Pada Avanza, soket atau jack audio ini dapat ditemukan di head unit atau amplifier.Jalur kabel audio mobil Avanza bekerja dengan mengalirkan sinyal audio dari head unit ke amplifier melalui kabel audio. Amplifier kemudian memperkuat sinyal audio dan mengirimkannya ke speaker melalui kabel audio yang terhubung. Proses ini menghasilkan suara yang dapat didengar oleh pengemudi dan penumpang dalam kendaraan.
Penting untuk memeriksa kondisi jalur kabel audio mobil secara berkala dan menggantinya jika terjadi kerusakan. Hal ini penting untuk menjaga kualitas suara yang optimal dan mencegah gangguan dalam sistem audio mobil.
**Disclaimer**: Informasi ini berlaku secara umum dan dapat bervariasi tergantung pada merek dan model mobil. Pastikan untuk merujuk pada buku panduan atau manual servis yang disediakan oleh produsen mobil Anda untuk informasi yang lebih spesifik mengenai jalur kabel audio pada mobil Avanza.
Jalur Kabel Sistem Pengendalian Mesin
pJalur kabel sistem pengendalian mesin terdiri dari berbagai komponen yang bertanggung jawab untuk menghubungkan berbagai elemen pengendalian mesin, seperti sensor, aktuator, dan unit kontrol. Berikut adalah penjelasan mengenai jalur kabel sistem pengendalian mesin:1. Sensor:
Sensor adalah komponen yang digunakan untuk mendeteksi dan mengukur berbagai kondisi dan parameter mesin, seperti suhu, tekanan, kecepatan, dan posisi. Sensor ini terhubung ke sistem pengendalian melalui jalur kabel untuk mengirimkan data dan informasi mengenai kondisi mesin.
2. Unit Kontrol:
Unit kontrol, seperti Electronic Control Unit (ECU) atau Engine Control Module (ECM), adalah komponen yang mengatur dan mengendalikan operasi mesin berdasarkan data yang diterima dari sensor. Unit kontrol ini terhubung dengan sensor dan aktuator melalui jalur kabel untuk mengirimkan sinyal dan instruksi yang diperlukan untuk pengendalian mesin.
3. Kabel Penghubung:
Kabel penghubung adalah kabel yang digunakan untuk menghubungkan sensor, unit kontrol, dan aktuator dalam sistem pengendalian mesin. Kabel ini mentransfer sinyal dan arus listrik antara komponen-komponen tersebut untuk menjalankan fungsi pengendalian mesin.
4. Aktuator:
Aktuator adalah komponen yang merespons instruksi dari unit kontrol dengan melakukan tindakan fisik, seperti menggerakkan katup, mengontrol aliran bahan bakar, atau mengatur sistem pembakaran. Aktuator ini terhubung dengan unit kontrol melalui jalur kabel untuk menerima sinyal dan instruksi yang diperlukan untuk tindakan pengendalian mesin.
Jalur kabel sistem pengendalian mesin bekerja dengan mengalirkan sinyal dan arus listrik antara sensor, unit kontrol, dan aktuator. Sensor mendeteksi kondisi mesin dan mengirimkan data ke unit kontrol melalui kabel penghubung. Unit kontrol kemudian menganalisis data tersebut dan mengirimkan instruksi ke aktuator untuk melakukan tindakan pengendalian yang diperlukan.
Penting untuk memeriksa kondisi jalur kabel sistem pengendalian mesin secara berkala dan menggantinya jika terjadi kerusakan. Hal ini penting untuk menjaga kinerja dan keandalan sistem pengendalian mesin serta mencegah gangguan atau kegagalan dalam operasi mesin.
Disclaimer: Informasi ini berlaku secara umum dan dapat bervariasi tergantung pada jenis mesin dan kendaraan. Pastikan untuk merujuk pada buku panduan atau manual servis yang disediakan oleh produsen mesin atau kendaraan Anda untuk informasi yang lebih spesifik mengenai jalur kabel sistem pengendalian mesin. (AI)
DOWLOAD LENGKAP DIAGRAM JALUR MOBIL AVANZA : DOWNLOAD
